AutoCAD drawing files show the detail of section and partial plan of Staircase 2d drawings.Download the DWG file.
Description
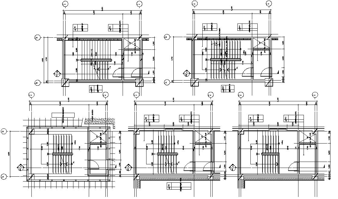
AutoCAD drawing files show the detail of section and partial plan of Staircase 2d drawings. This file shows the details of the partial plan of the staircase structure with staircase riser and treads details. Riser height and tread width details are also shown in the drawing. A detailed section plan of the staircase is given. Download the DWG file.
File Type:
DWG
File Size:
372 KB
Category::
Structure
Sub Category::
Section Plan CAD Blocks & DWG Drawing Models
type:
Gold

Uploaded by:
AS
SETHUPATHI

