DWG drawing file shows the details of the mechanical room layout details,Download the DWG file.
Description
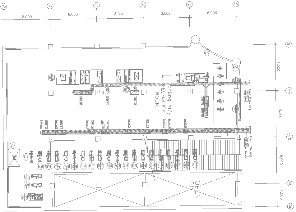
DWG drawing file shows the details of the mechanical room layout details, Battery connection, UPS parallel, earthing bus bar, emergency light connection, Generator set details, Emergency generator set and diesel engine are marked in this drawing. Download the DWG file.

Uploaded by:
AS
SETHUPATHI

