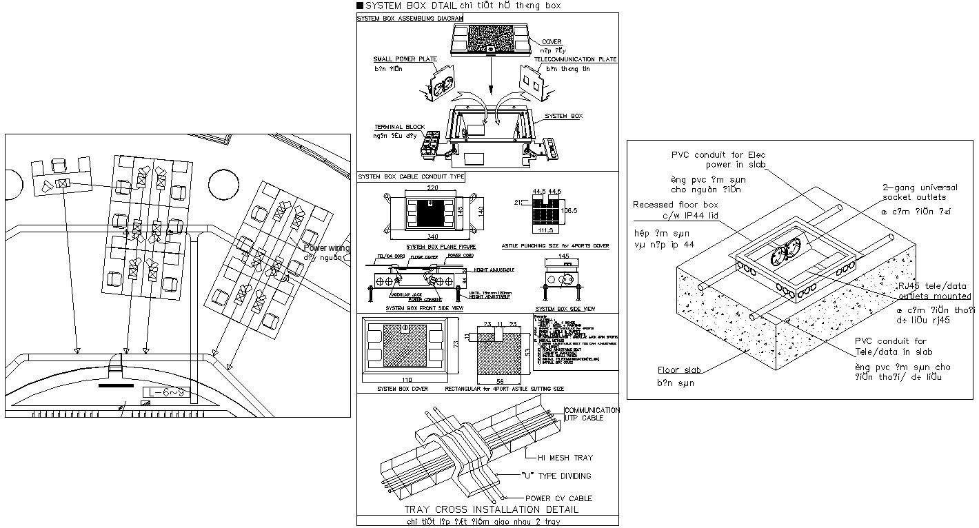
AutoCAD Drawing file showing the details of Electrical System box section and elevation details.Download the dwg file.
Description
AutoCAD Drawing file showing the details of the Electrical System box section and elevation details. In the section plan, PVC conduit, power in the slab, Recessed floor box, floor slab, PVC conduit for tele/data in the slab , outlet mounted are the details mentioned,Download the dwg file.

Uploaded by:
AS
SETHUPATHI

