CAD Drawing file shows the details of the Electrical System box building section details.Download the dwg file.
Description
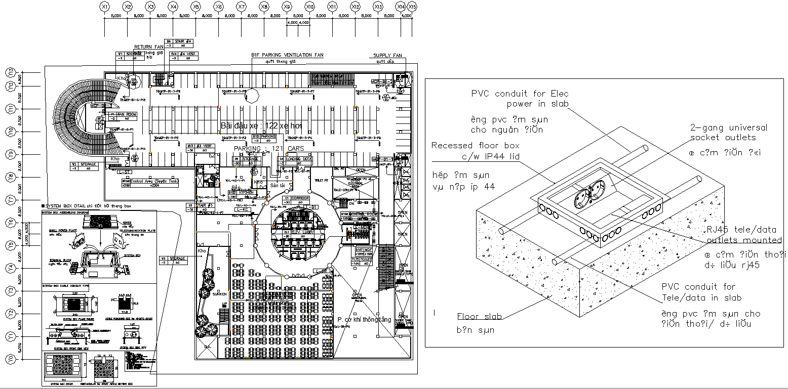
CAD Drawing file shows the details of the Electrical System box building section details. In the section plan, PVC conduit, power in the slab, Recessed floor box, floor slab, PVC conduit for tele/data in the slab , outlet mounted are the details mentioned,Download the dwg file.
File Type:
DWG
File Size:
882 KB
Category::
Structure
Sub Category::
Section Plan CAD Blocks & DWG Drawing Models
type:
Gold

Uploaded by:
AS
SETHUPATHI

