DWG file having the details of the High rise building first-floor section details, Download the DWG file.
Description
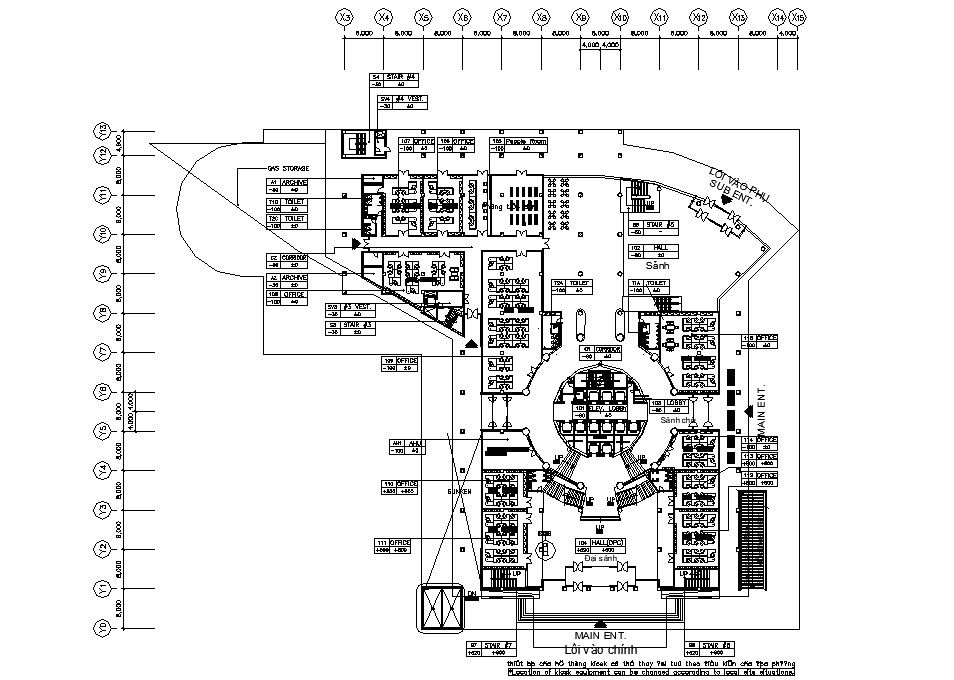
DWG file having the details of the High rise building first-floor section details, In the sectional plan, corridor, the vice Chairman room, storage room, and office are marked very clearly in this AutoCAD Drawing file. Download the DWG file. Thanks for downloading DWG file from our website.
File Type:
DWG
File Size:
2.2 MB
Category::
Structure
Sub Category::
Section Plan CAD Blocks & DWG Drawing Models
type:
Gold

Uploaded by:
AS
SETHUPATHI

