TV Unit AutoCAD File for Modern Interior Design Layouts
Description
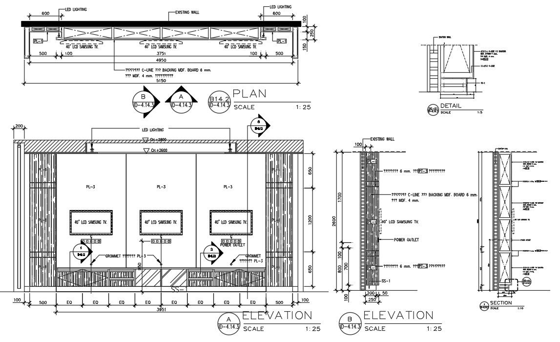
AutoCAD drawing of T V unit furniture interior design that shows plan, side section and elevation design with wall frame design. also has 40 "LCD Samsung TV with power outlet design and except 6 mm Painted inside the groove.
Uploaded by:

