various sizes of Steel door sectional details given in this Drawing file,Download this DWG file.
Description
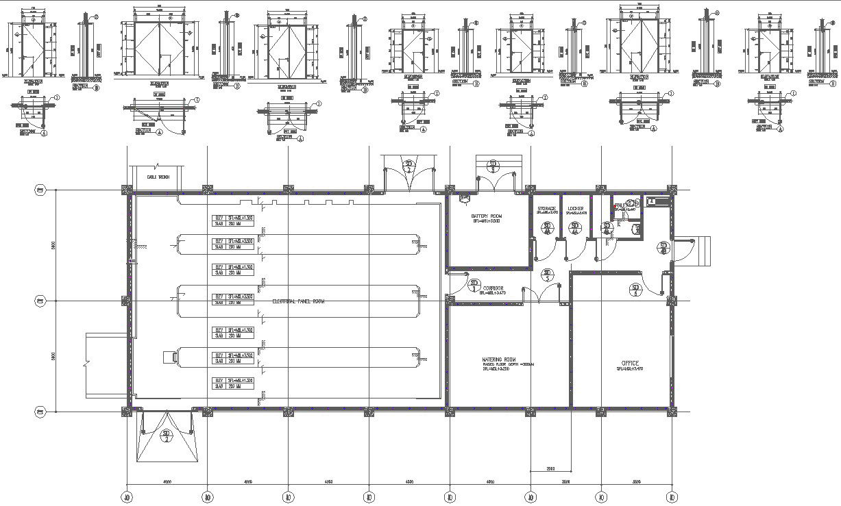
various sizes of Steel door sectional details are given in this Drawing file, Steel doors for the office building are given with detailed measurements in the section plan. A total of seven single and double steel doors dimensions mention in this drawing. Download this DWG file.
File Type:
DWG
File Size:
857 KB
Category::
Structure
Sub Category::
Section Plan CAD Blocks & DWG Drawing Models
type:
Gold

Uploaded by:
AS
SETHUPATHI

