DWG AutoCAD file Shows the details of the diamond Facade of Shop drawing, Download Autocad DWg drawing file.
Description
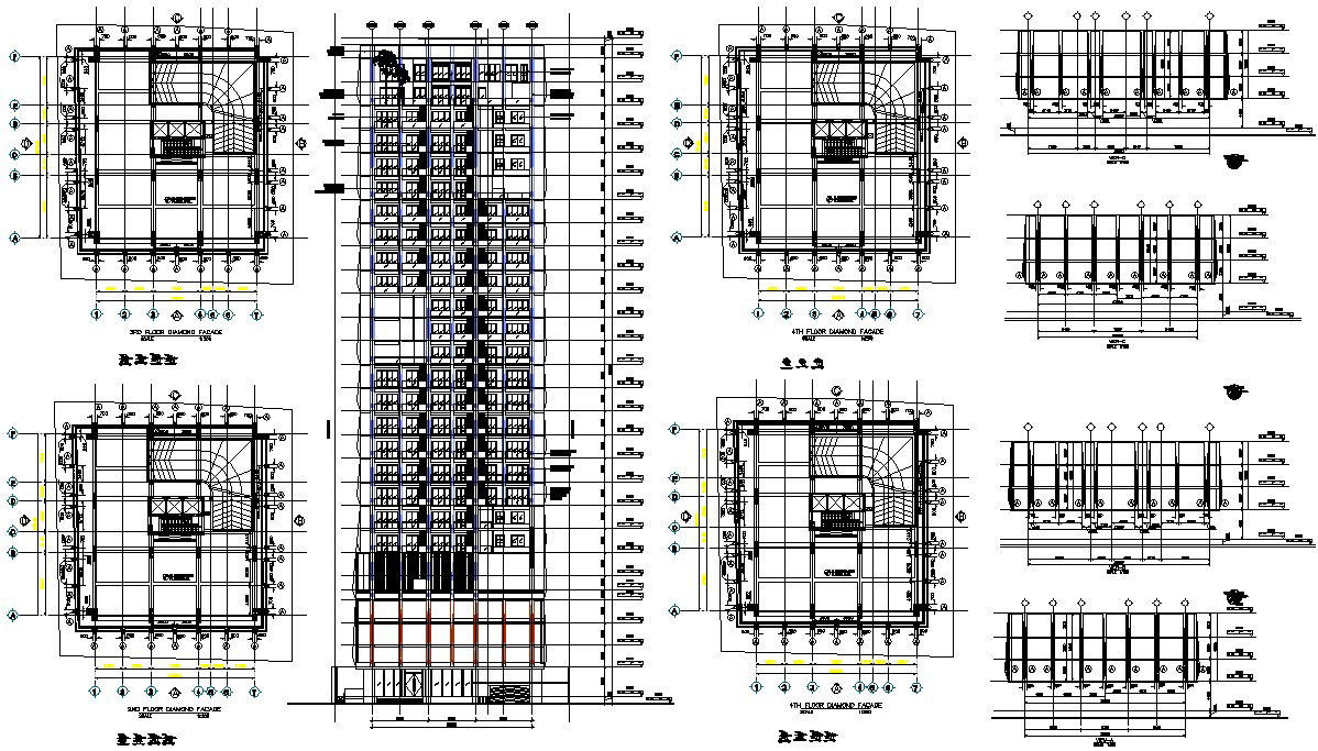
DWG AutoCAD file Shows the details of the diamond Facade of Shop drawing, a Total of four floors shops available in this building for all the four floors diamond facade section and elevation plan given in this drawing file. Download Autocad DWg drawing file.
File Type:
DWG
File Size:
4.1 MB
Category::
Structure
Sub Category::
Section Plan CAD Blocks & DWG Drawing Models
type:
Free

Uploaded by:
AS
SETHUPATHI
