AutoCAD DWG files having the details of the section of the beam, and connection details.
Description
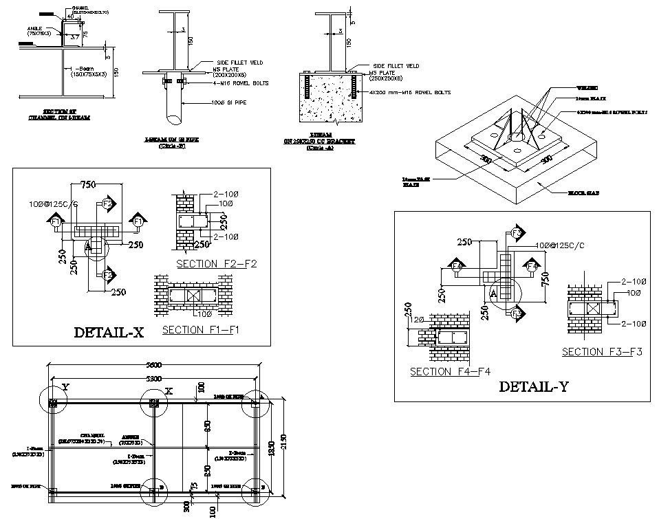
AutoCAD DWG files having the details of the section of the beam, and connection details. This drawing file shows a section of the beam and connection details. telephone tower location is on the house, Sectional details of the tower foundation and long section details are clearly mentioned in this drawing .check the details and download the AutoCAD dwg file.

Uploaded by:
AS
SETHUPATHI

