CAD DWG file Shows the details of the 2bhk house.Download the AutoCAD DWG file.
Description
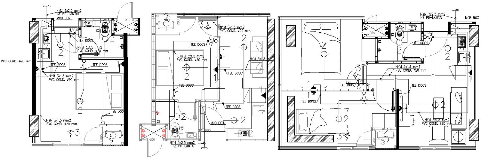
AutoCAD DWG file Shows the details of the 2bhk house. In the drawing file, master bedroom and kids bedroom, kitchen , toilet, and living room are the details given. Download the AutoCAD DWG file. Thanks for downloading DWG Autocad Files from our website.

Uploaded by:
AS
SETHUPATHI

