AutoCAD DWG file Shows the details of the electrical installation diagram. Download the AutoCAD DWG file.
Description
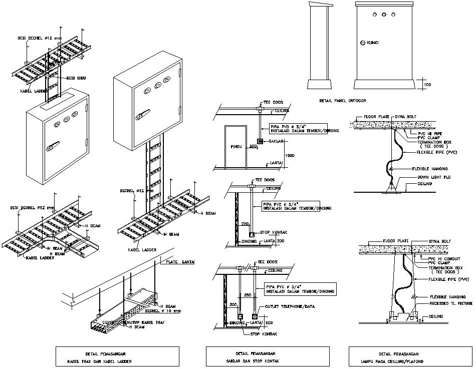
AutoCAD DWG file Shows the details of the electrical installation diagram. In the drawing file, ladder, floor plate, PVC, flexible hanging, recessed TL fixture, termination box are the details given. Download the AutoCAD DWG file. Thanks for downloading DWG Autocad Files from our website.

Uploaded by:
AS
SETHUPATHI
