AutoCAD files showing the details of the typical reinforcement steel beam. download the AutoCAD dwg file.
Description
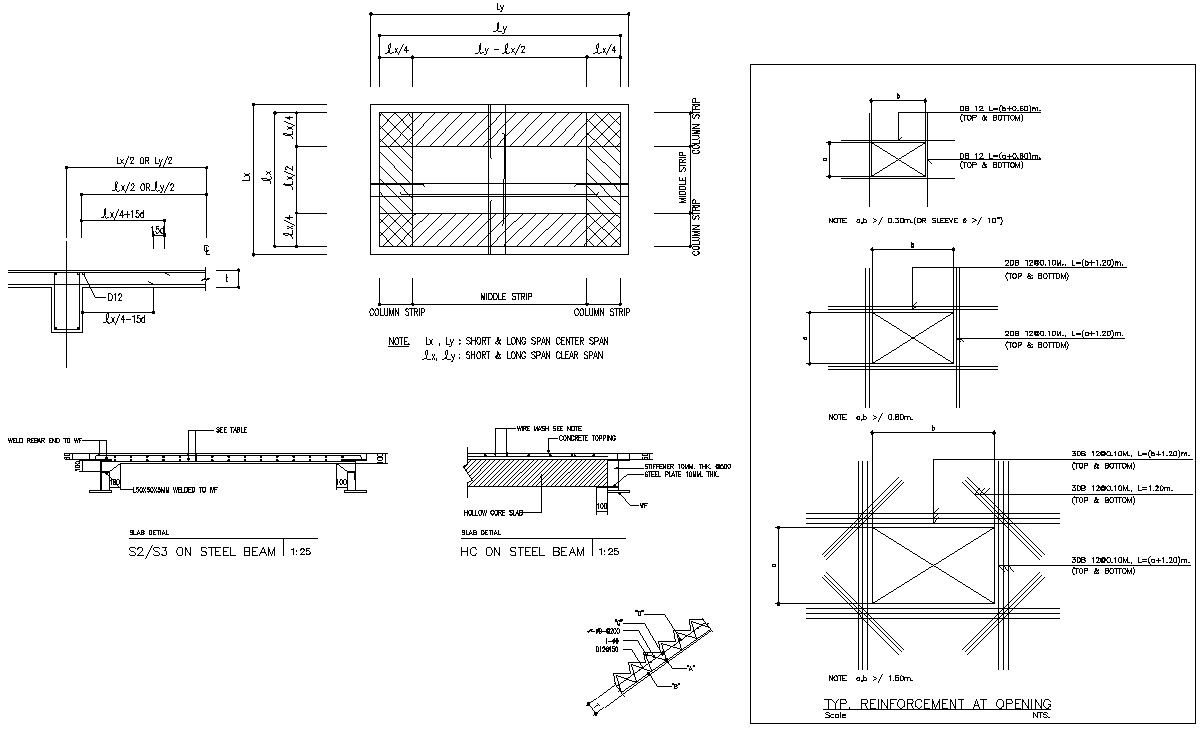
AutoCAD files showing the details of the typical reinforcement steel beam. This drawing file shows the short and Long span section details, Sectional details of the reinforcement steel beam are clearly given in this drawing .check the details and download the AutoCAD dwg file.

Uploaded by:
AS
SETHUPATHI

