Septic Tank Boundary Wall RCC Lintel Sectional Drawing DWG file.
Description
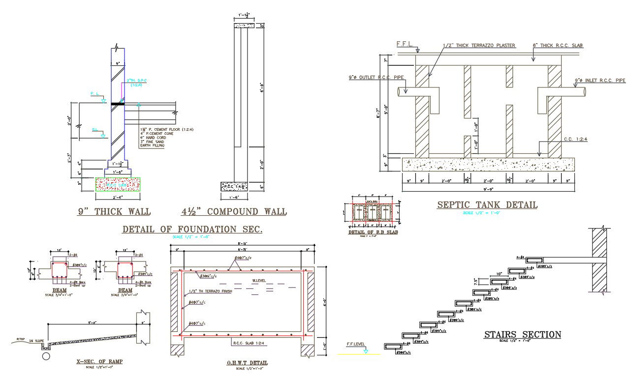
This AutoCAD DWG file presents sectional drawings of a septic tank, boundary wall, and RCC lintel. The layout includes foundation, 9-inch thick wall, ramp details, and staircase sections. It is ideal for architects, civil engineers, and construction professionals, providing precise dimensions and accurate planning for building projects while ensuring structural integrity and efficient construction workflows.
File Type:
DWG
File Size:
161 KB
Category::
Structure
Sub Category::
Section Plan CAD Blocks & DWG Drawing Models
type:
Free

Uploaded by:
AS
SETHUPATHI

