AutoCAD file of two-bedroom G+1 House plan,Download the AutoCAD Drawing file.
Description
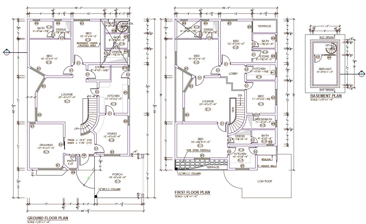
AutoCAD file of two-bedroom G+1 House plan . In this Plan the Ground floor having a master bedroom with an attached toilet, Kid's bedroom with an attached toilet, patio, Drawing room, Kitchen, Dining, TV Lounge, lobby, porch, and Lawn are available. On the first floor, rooms are also similar to the ground floor. The staircase is available inside the house. Download the AutoCAD Drawing file.

Uploaded by:
AS
SETHUPATHI

