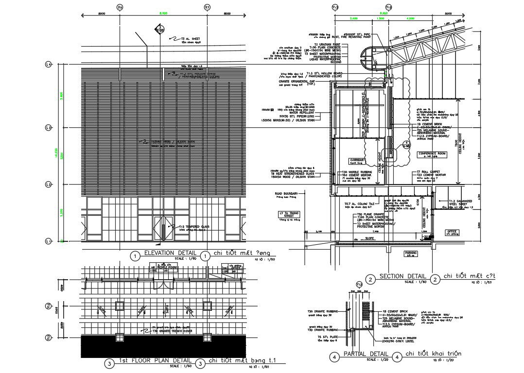
2D CAD Drawing file shows the first-floor plan, Section and elevation details of the industrial building. Download the AutoCAD DWG file.
Description
2D CAD Drawing file shows the first-floor plan, Section and elevation details of the industrial building, Section and elevation details of the industrial building. In the sectional plan, the equipment and material details are marked very clearly in this AutoCAD Drawing file. Download the AutoCAD DWG file. Thank you so much for downloading the DWG file from our website.
File Type:
DWG
File Size:
299 KB
Category::
Structure
Sub Category::
Section Plan CAD Blocks & DWG Drawing Models
type:
Gold

Uploaded by:
AS
SETHUPATHI

