Drawing file of AutoCAD showing the section details and partial plan of the staircase.Download the AutoCAD drawing file.
Description
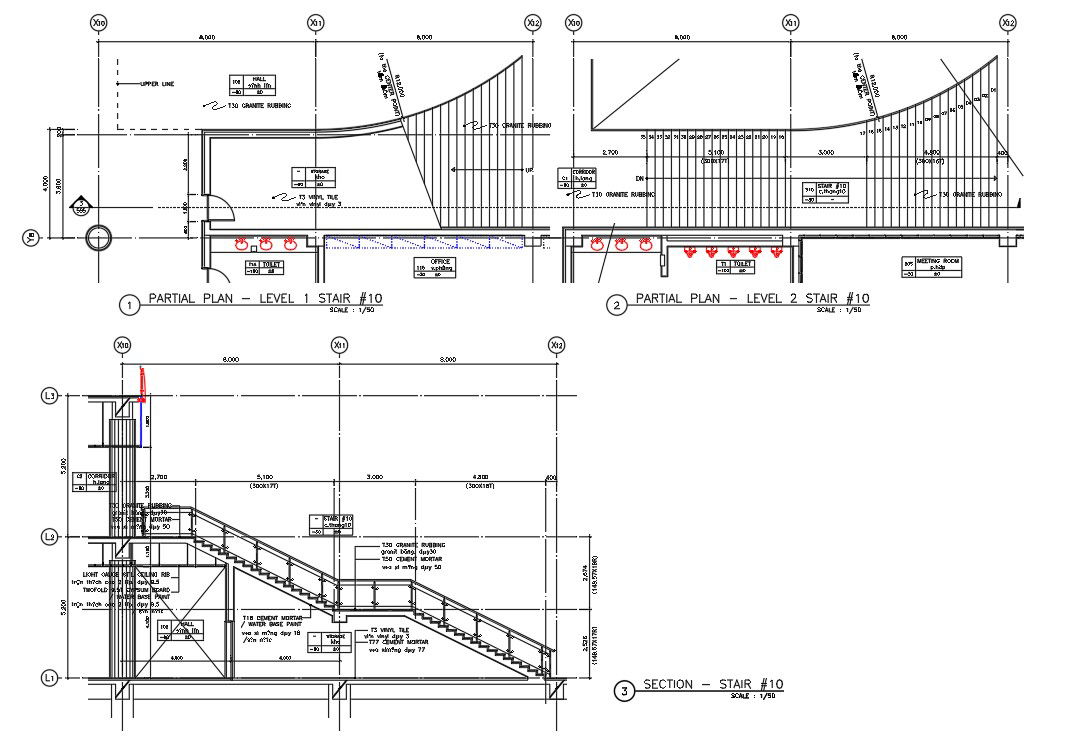
Drawing file of AutoCAD showing the section details and partial plan of the staircase. In this drawing file, section details and partial plan of the staircase, Detailed dimensions and the sectional plan are clearly mentioned in this drawing. Download the AutoCAD drawing file. Thank you so much for Downloading the AutoCAD files from our website.
File Type:
DWG
File Size:
545 KB
Category::
Structure
Sub Category::
Section Plan CAD Blocks & DWG Drawing Models
type:
Free

Uploaded by:
AS
SETHUPATHI

