House Plan and elevation
Description
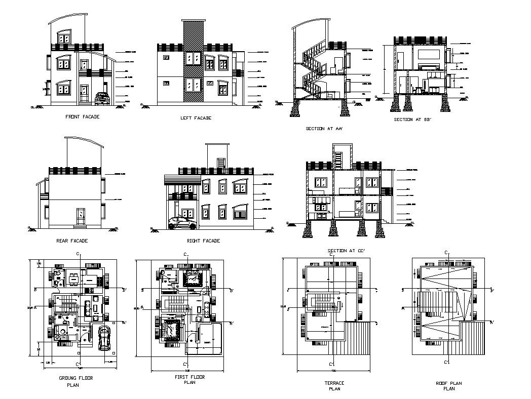
This is typical house plan which currently exist in India and it includes section elevation and floor plans where it can be easily rendered to 3d model.This house is well suitable for India as the style of the house says so.The size is medium scale for standard house.
Uploaded by:
Aravind
T
