AutoCAD drawing file shows the Front Elevation and section details of the Single BHK G+1 house plan AutoCAD DWG file. Download the AutoCAD Drawing file.
Description
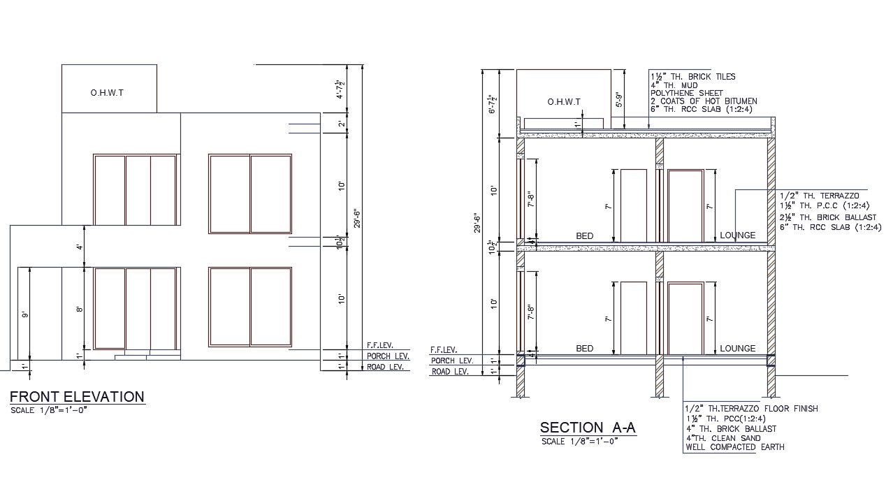
AutoCAD drawing file shows the Front Elevation and section details of the Single BHK G+1 house plan AutoCAD DWG file. In this Plan the Ground floor having a master bedroom with an attached toilet, Children's bedroom with attached toilet, Drawing room, Kitchen, Dining, TV Lounge, lobby, porch, and Lawn are available. On the first floor, rooms are also similar to the ground floor. The staircase is available inside the house. The elevation of this house is given in this drawing file. Download the AutoCAD Drawing file.

Uploaded by:
AS
SETHUPATHI

