AutoCAD Drawing file shows the typical Floor plan of the service apartment house,Download the Autocad dwg file.
Description
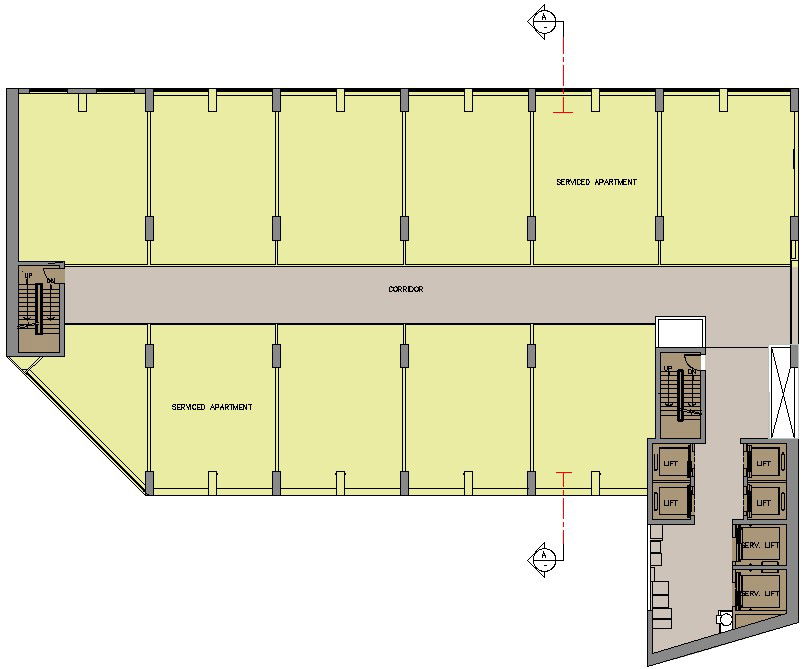
AutoCAD Drawing file shows the typical Floor plan of the service apartment house, In this plan, the Floor plan of the service apartment is available. A total of ten units in same land area is available in this drawing. The staircase and lifts are available inside the apartment. Download the Autocad dwg file.

Uploaded by:
AS
SETHUPATHI

