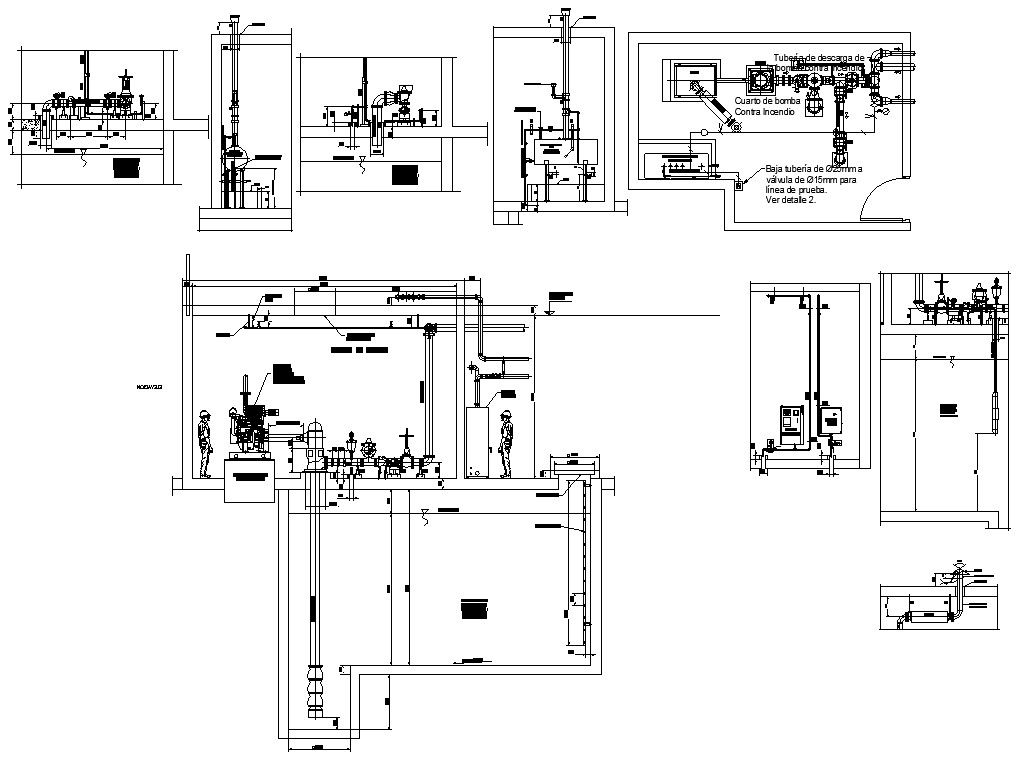
CAD drawing 2D file shows the details of the machinery room,Download the AutoCAD DWG file.
Description
CAD drawing 2D file shows the details of the machinery room. Sectional details are clearly given in this drawing file. Also Location plan available in this DWG file. Download the AutoCAD DWG file. Thank you so much for downloading DWG file from our website

Uploaded by:
AS
SETHUPATHI

