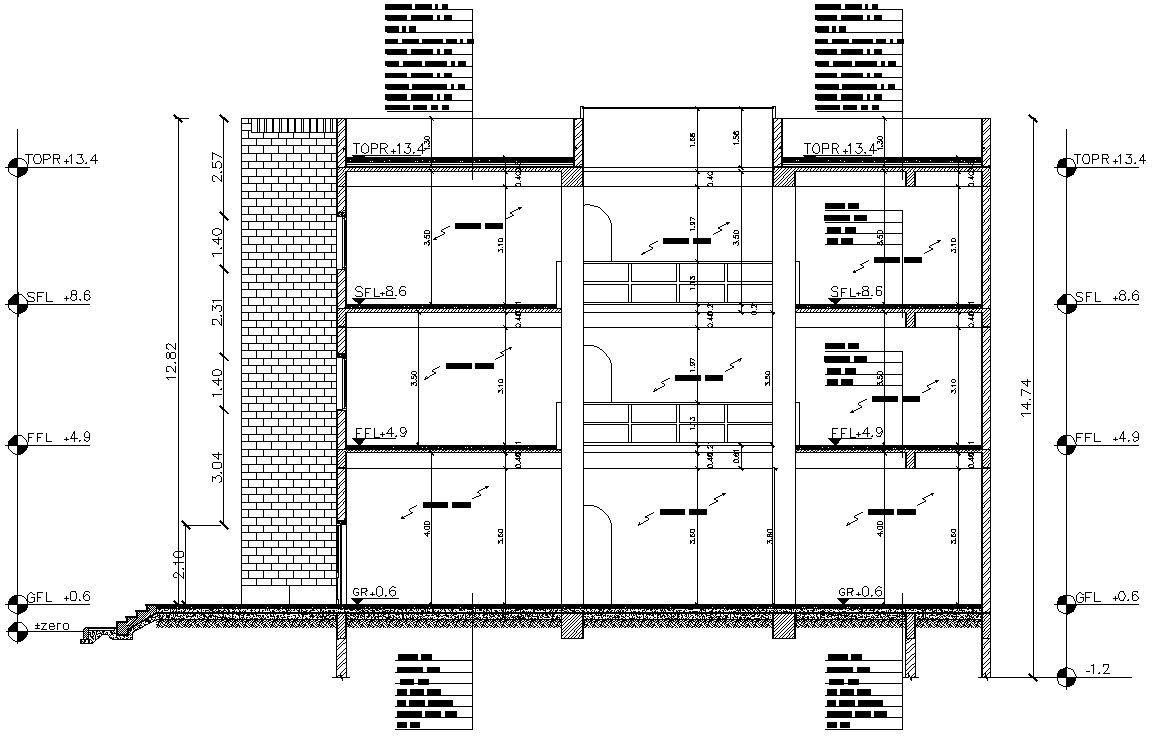
CAD file shows the details of the G+2commercial building sectional drawing, Download the AutoCAD DWG file.
Description
CAD file shows the details of the G+2commercial building sectional drawing. elevation and section layout details are clearly given in this drawing file. Also, the section plan available in this DWG file. Download the AutoCAD DWG file. Thank you so much for downloading DWG file from our website
File Type:
DWG
File Size:
1.7 MB
Category::
Structure
Sub Category::
Section Plan CAD Blocks & DWG Drawing Models
type:
Free

Uploaded by:
AS
SETHUPATHI

