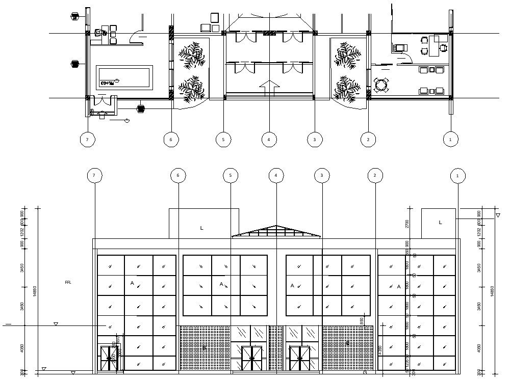
The drawing AutoCAD file shows the details of the front elevation and sectional drawing of the Restaurant building.Download the AutoCAD DWG file.
Description
The drawing AutoCAD file shows the details of the front elevation and sectional drawing of the Restaurant building. elevation and section layout details are clearly given in this drawing file. Also, the section plan available in this DWG file. Download the AutoCAD DWG file. Thank you so much for downloading DWG file from our website
File Type:
DWG
File Size:
820 KB
Category::
Structure
Sub Category::
Section Plan CAD Blocks & DWG Drawing Models
type:
Free

Uploaded by:
AS
SETHUPATHI

