CAD 2D drawing files having the detail of the Staircase section plan, Download the AutoCAD DWG file.
Description
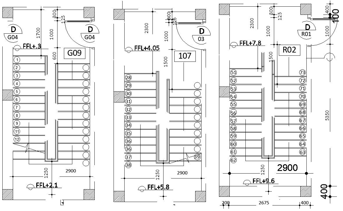
CAD 2D drawing files having the detail of the Staircase section plan . This file shows a side elevation and the partial plan of the staircase .structure with staircase riser and treads details. Riser height and tread width details are also shown in the drawing. Download the AutoCAD DWG file. Thank you so much for downloading AutoCAD DWG file from our website.
File Type:
DWG
File Size:
1015 KB
Category::
Structure
Sub Category::
Section Plan CAD Blocks & DWG Drawing Models
type:
Free

Uploaded by:
AS
SETHUPATHI
