LOGIN
HOME
CATEGORIES
UPLOAD FILE
PRICING
HOUSE PLAN
ABOUT US
CONTACT US
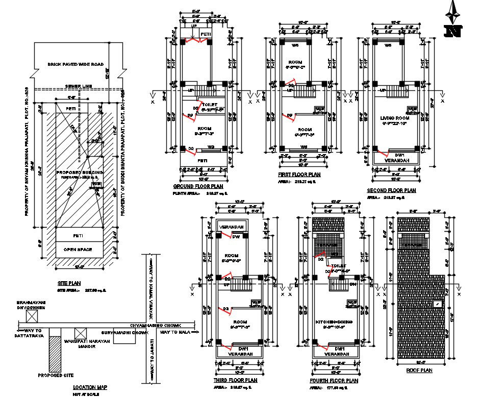
5 BHK 4 Storey House Plan Drawing DWG
Home
Categories
Architecture
House Plan
5 BHK 4 Storey House Plan Drawing DWG
Uploaded by:
Aarash
View Profile
View Profile
Description
5 BHK 4 Storey House Plan Drawing with all dimension detail and sectional elevation design and site purpose plan detail in AutoCAD format.
File Type:
Autocad
File Size:
757 KB
Category::
Architecture
Sub Category::
House Plan
type:
Gold
Uploaded by:
Aarash
View Profile
Download
Add to libary
find Latest
Related
Files