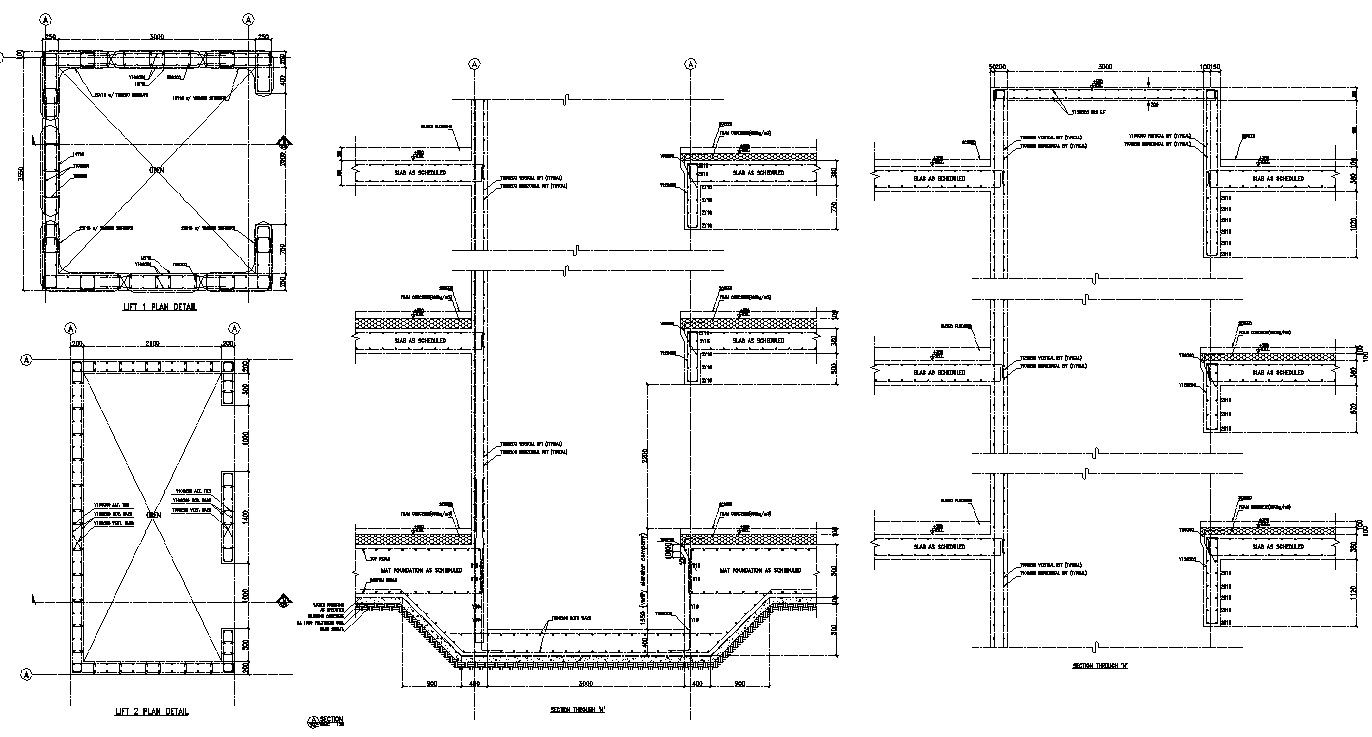
CAD Drawing 2D DWG file of the scheduled mat foundation reinforcement section details. Download the AutoCAD DWG file.
Description
CAD Drawing 2D DWG file of the scheduled mat foundation reinforcement section details. Sectional details are clearly given in this drawing file. Also, mat foundation reinforcement is available in this DWG file. Download the AutoCAD DWG file. Thank you so much for downloading the DWG file from our website.
File Type:
DWG
File Size:
6.5 MB
Category::
Structure
Sub Category::
Section Plan CAD Blocks & DWG Drawing Models
type:
Gold

Uploaded by:
AS
SETHUPATHI

