Longitudinal section details of the AutoCAD Drawing file,Download the AutoCAD DWG file.
Description
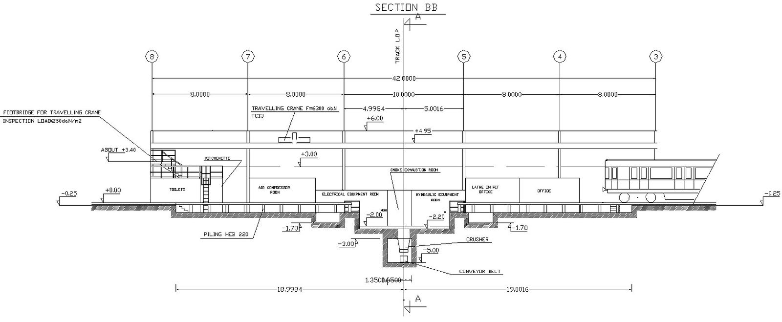
Longitudinal section details of the AutoCAD Drawing file. Sectional details are clearly given in this drawing file. The footbridge for traveling crane details are mentioned in this DWG file. Download the AutoCAD DWG file. Thank you so much for downloading DWG file from our website
File Type:
DWG
File Size:
610 KB
Category::
Structure
Sub Category::
Section Plan CAD Blocks & DWG Drawing Models
type:
Gold

Uploaded by:
AS
SETHUPATHI

