AutoCAD Drawing file of the room fall ceiling connection details,Download the AutoCAD DWG file.
Description
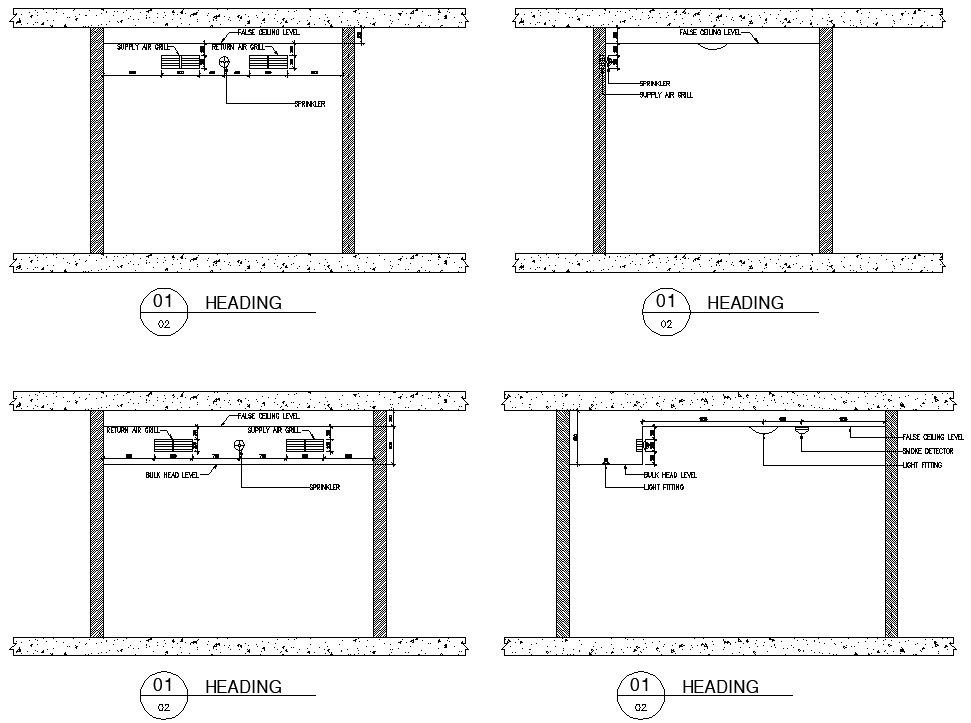
AutoCAD Drawing file of the room fall ceiling connection details. Sectional details are clearly given in this drawing file. The detailed elevation of the fall ceiling level, light fitting are the details are given in this DWG file. Download the AutoCAD DWG file. Thank you so much for downloading DWG file from our website
File Type:
DWG
File Size:
5.6 MB
Category::
Structure
Sub Category::
Section Plan CAD Blocks & DWG Drawing Models
type:
Gold

Uploaded by:
AS
SETHUPATHI

