Metering and Electrical Panel room AutoCAD DWG drawing file details are given. Download the AutoCAD 2D DWG file.
Description
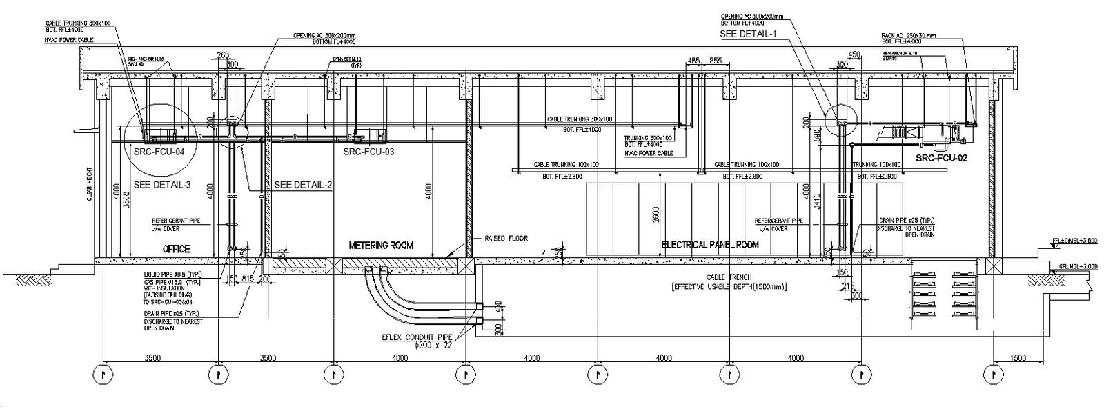
Metering and Electrical Panel room AutoCAD DWG drawing file details are given. Sectional details are clearly given in this drawing file. The storage,locker room office room,Metering and Electrical Panel room are given in this DWG file. Download the AutoCAD 2D DWG file. Thank you so much for downloading DWG file from our website
File Type:
DWG
File Size:
3.5 MB
Category::
Structure
Sub Category::
Section Plan CAD Blocks & DWG Drawing Models
type:
Gold

Uploaded by:
AS
SETHUPATHI

