G+5 apartment building side elevation and section cad drawing file.Download the AutoCAD 2D DWG file.
Description
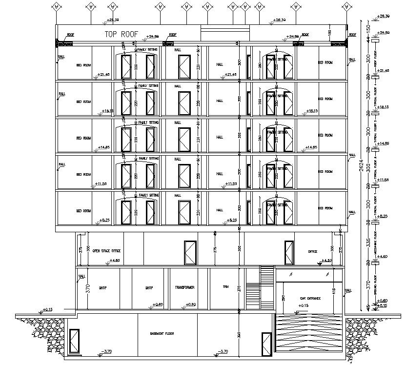
G+5 apartment building side elevation and section cad drawing file. Sectional details are clearly given in this drawing file. The detail of the apartment building side elevation diagram is given in this DWG file. Download the AutoCAD 2D DWG file. Thank you so much for downloading DWG file from our website
File Type:
DWG
File Size:
6.4 MB
Category::
Structure
Sub Category::
Section Plan CAD Blocks & DWG Drawing Models
type:
Gold

Uploaded by:
AS
SETHUPATHI

