Floor plan Column marking details AutoCAD DWG drawing file is available. Download the AutoCAD 2D DWG file.
Description
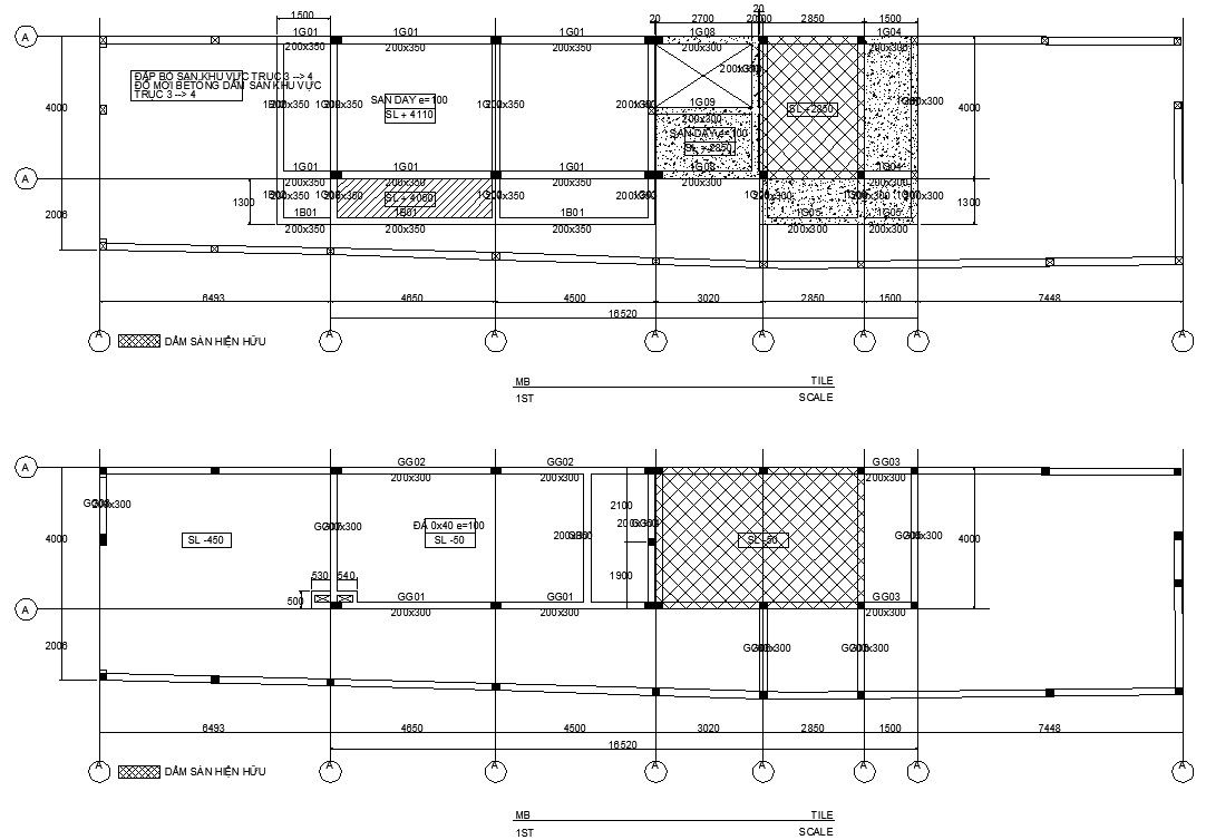
Floor plan Column marking details AutoCAD DWG drawing file is available. Sectional details are clearly given in this drawing file. The Column marking and dimension details are given in this DWG file. Download the AutoCAD 2D DWG file. Thank you so much for downloading DWG file from our website
File Type:
DWG
File Size:
676 KB
Category::
Structure
Sub Category::
Section Plan CAD Blocks & DWG Drawing Models
type:
Gold

Uploaded by:
AS
SETHUPATHI

