The CAD Drawing file of the hotel building floor plan details.Download the AutoCAD 2D DWG file.
Description
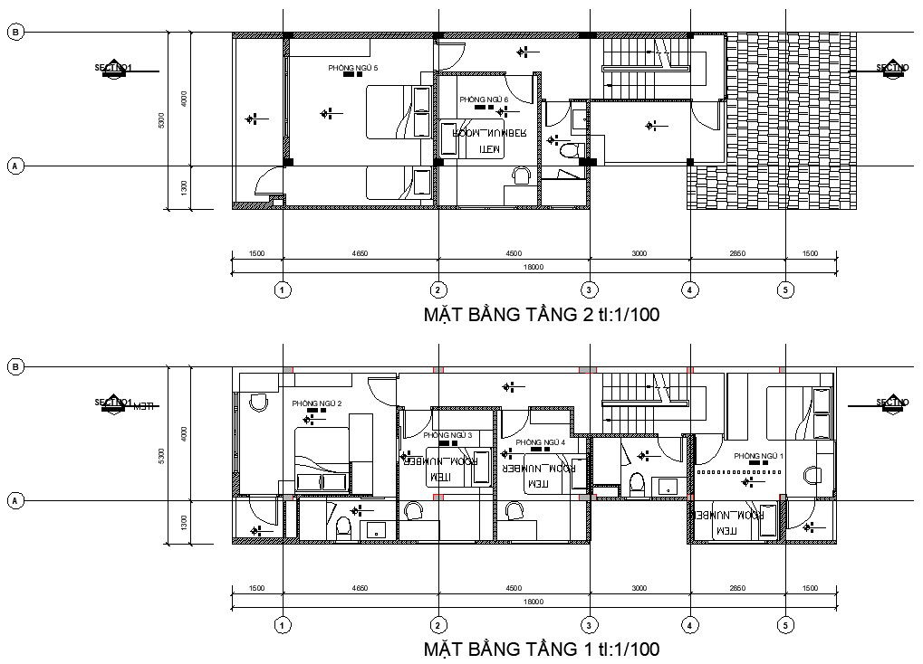
The CAD Drawing file of the hotel building floor plan details. Sectional details are clearly given in this drawing file. The hotel building floor plan shows a bedroom with an attached toilet in this DWG file. The staircase, is available inside the building. Download the AutoCAD 2D DWG file. Thank you so much for downloading DWG file from our website

Uploaded by:
AS
SETHUPATHI

