G+1 Architectural residential Building Section and elevation Autocad Drawing is available. Download the AutoCAD DWG file.
Description
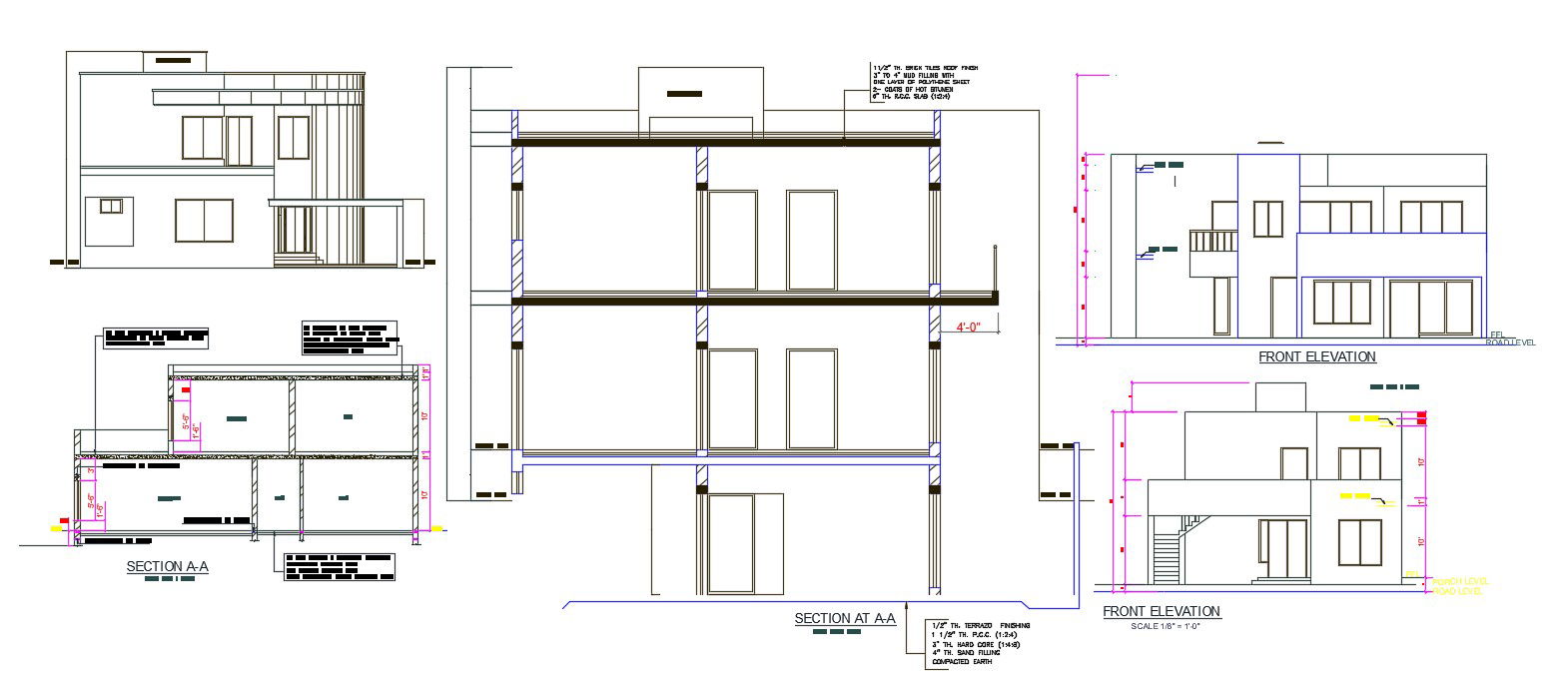
G+1 Architectural residential Building Section and elevation Autocad Drawing is available. Front elevation details are available in this drawing file. The door, window, and roof are visible in this elevation drawing. Column and beam are showed in the section plan. Download the AutoCAD DWG file. Thank you so much for downloading DWG file from our website

Uploaded by:
AS
SETHUPATHI

