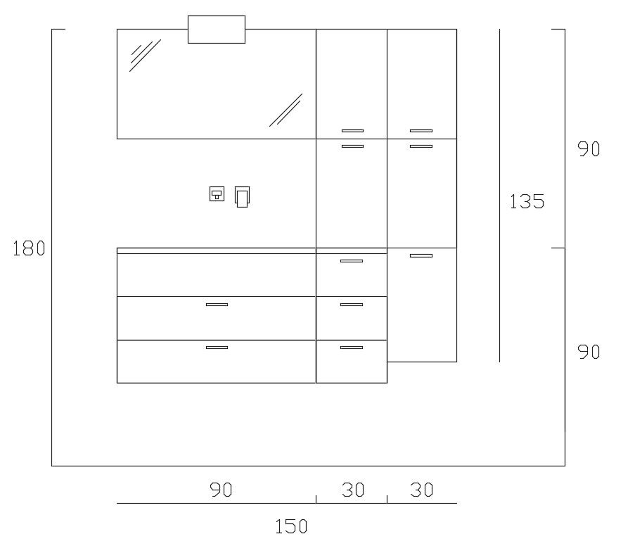
Wall Ganging Wash Basin Unit With Mounted Tap Elevation drawing
Description
A sink — also known by other names including sinker, washbowl, hand basin, and wash basin—is a bowl-shaped plumbing fixture used for washing hands, dishwashing, and other purposes. Sinks have taps (faucets) that supply hot and cold water and may include a spray feature to be used for faster rinsing. They also include a drain to remove used water; this drain may itself include a strainer and/or shut-off device and an overflow-prevention device. Sinks may also have an integrated soap dispenser. Many sinks, especially in kitchens, are installed adjacent to or inside a counter.
File Type:
Autocad
File Size:
7 KB
Category::
Dwg Cad Blocks
Sub Category::
Sanitary Ware Cad Block
type:
Free
Uploaded by:
Devesh
Patel

