The AutoCAD DWG drawing file of the electrical transformer connection elevation and section details.Download now.
Description
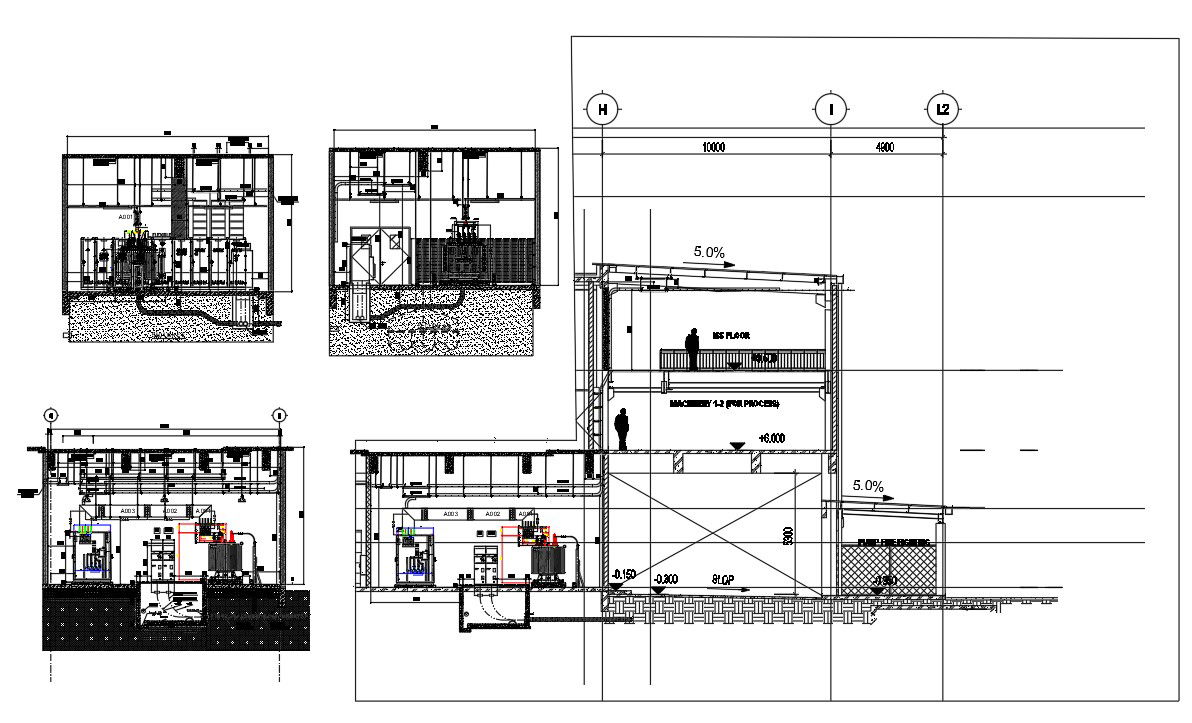
The AutoCAD DWG drawing file of the electrical transformer connection elevation and section details. Sectional details are clearly given in this drawing file. The detail of the transformer elevation and section, also connection details are given in this DWG file. Download the AutoCAD DWG file. Thank you so much for downloading DWG file from our website

Uploaded by:
AS
SETHUPATHI

