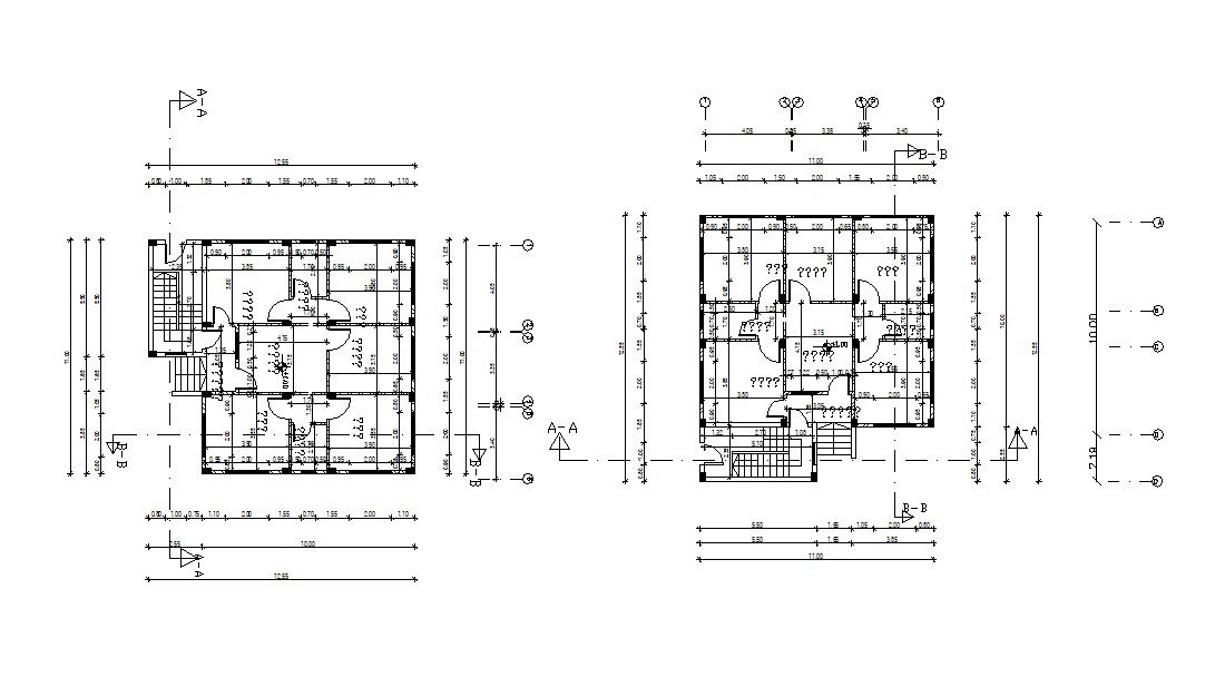
Residence G+1 House Layout Floor Plan
Description
Here presents the wonderful layout design for housing single storey bungalow working plan that shows bungalow construction dimension set detailing along with bungalow rooms design, floor level, staircase, and various other works details. Download bungalow floor plan for detailed working plan.

Uploaded by:
akansha
ghatge
