Bungalow Layout with Slab Design CAD Plan
Description
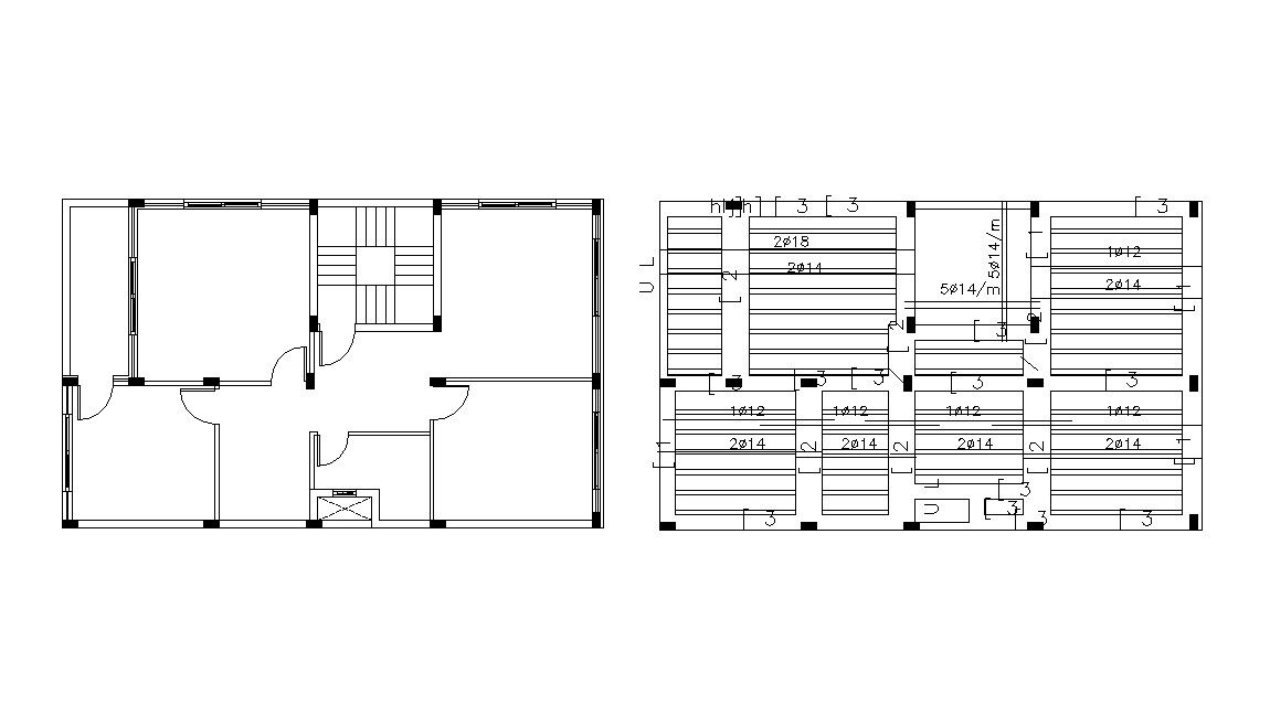
2d CAD drawing details of residence housing bungalow with column layout design CAD plan that shows bungalow room details along with bungalow slab structure curtailment details with reinforcement works details, bar dimension, and various other structural units details. Download CAD file for detailed drawing.

Uploaded by:
akansha
ghatge

