RCC Foundation Layout Structural CAD Plan
Description
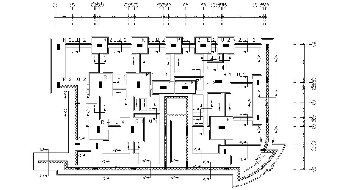
RCC shallow Foundation Pad footing design structural CAD plan that shows footing size, footing space, center line layout, dimension working sets, section line, column structure, and various other works details. Download structural works design of RCC pad footing CAD file.

Uploaded by:
akansha
ghatge
