RCC Structural Blocks Design 2d CAD File
Description
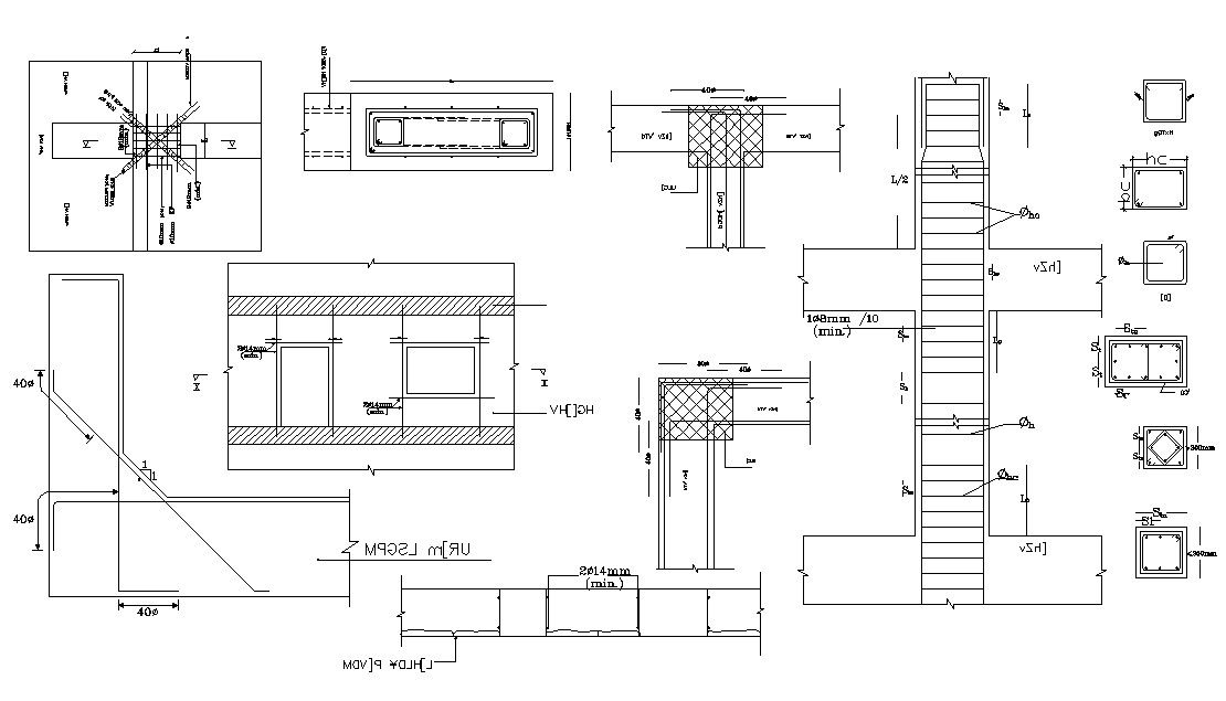
Reinforced Concrete Cement (RCC) Column footing structural works details that show reinforcement curtailment main and distribution bars details along with hook up and bent up bars, stirrups, bar dimension, effective and clear cover, footing size, column size, and various other structural works details. Download RCC works detailing CAD file for free.
File Type:
DWG
File Size:
170 KB
Category::
Construction
Sub Category::
Reinforced Cement Concrete Details
type:
Gold

Uploaded by:
akansha
ghatge

