Bungalow with Footing Layout CAD Plan
Description
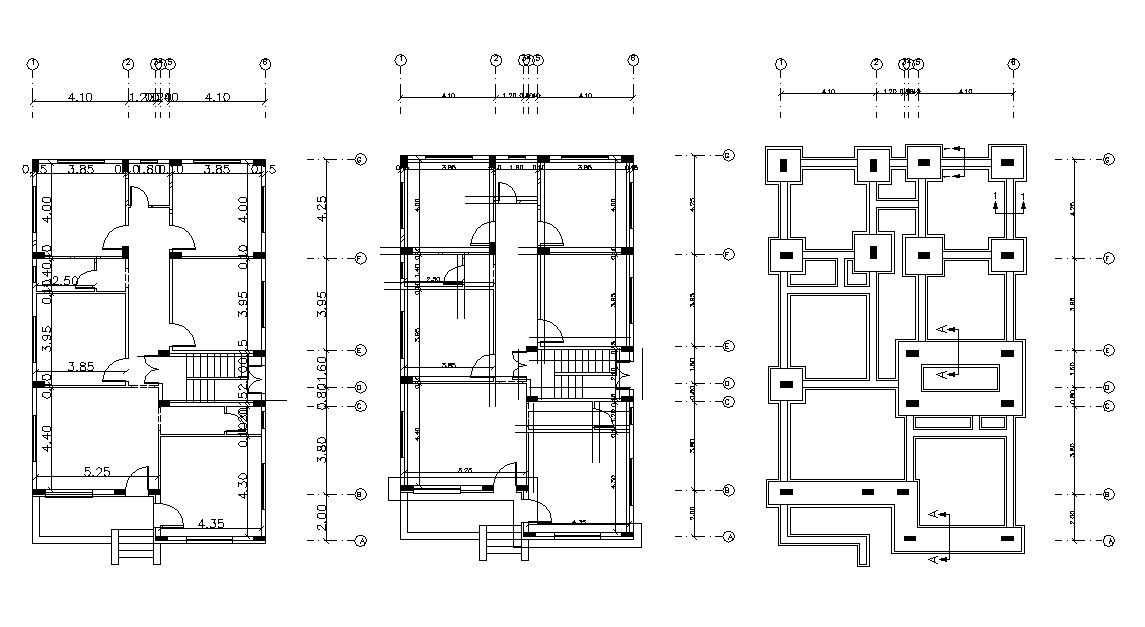
Detailed presented layout plan for residence housing bungalow that shows ground floor and first-floor plan if bungalow with dimension detailing, floor level, staircase design, rooms and various other unit details. Footing detailed plan is also presented in CAD file that can be downloaded for reference plan.

Uploaded by:
akansha
ghatge
