University Building Plan With Footing Design CAD File
Description
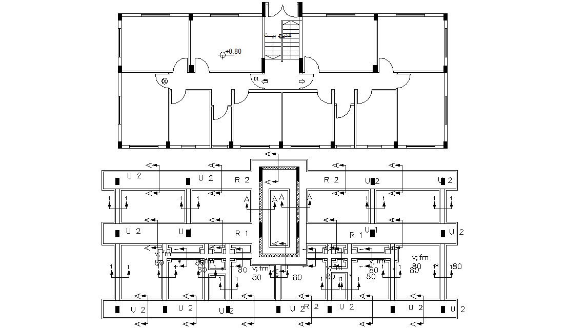
Here presents the university educational building layout design architecture floor plan along with column layout arrangement details to transfer the load of the building to the footing. The column footing layout plan is also shown in CAD file, download the AutoCAD file for detailed work.

Uploaded by:
akansha
ghatge

