2d Dormitory Building Design Floor Layout Plan
Description
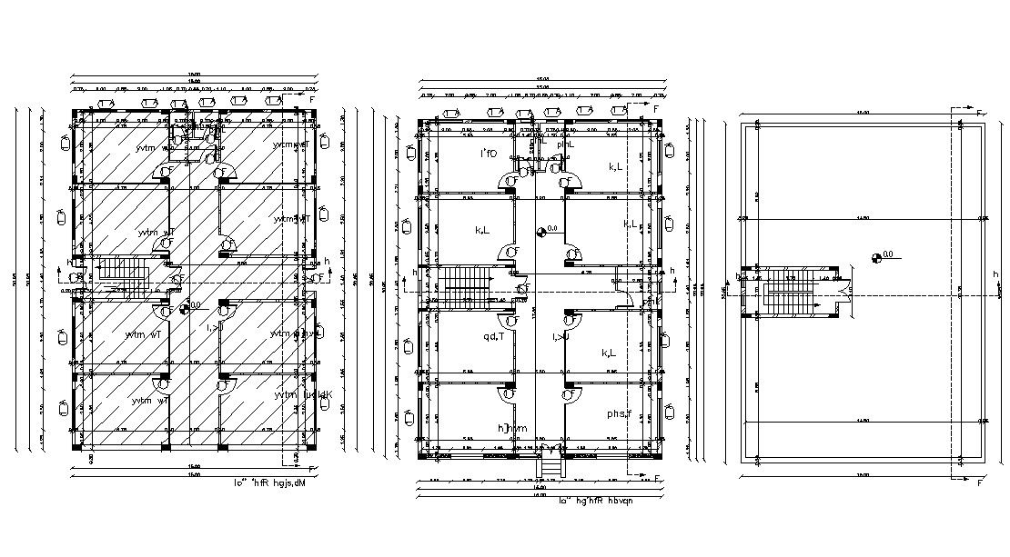
Dormitory Building Design ground floor first floor and terrace layout plan that shows building flooring details along wth building construction dimension working set, section line, staircase, room design, column arrangement, and building various other amenities detailing. Download architecture building layout plan for detailed working drawing.

Uploaded by:
akansha
ghatge

