AutoCAD drawing of the electrical substation section plan details. Download the AutoCAD DWG file.
Description
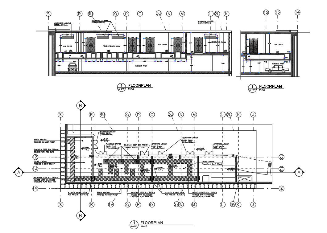
AutoCAD drawing of the electrical substation section plan details. Sectional details are clearly given in this drawing file. Also, the basement floor plan and section plan is given in this DWG file. Download the AutoCAD DWG file. Thank you so much for downloading the DWG file from our website.
File Type:
DWG
File Size:
229 KB
Category::
Structure
Sub Category::
Section Plan CAD Blocks & DWG Drawing Models
type:
Gold

Uploaded by:
AS
SETHUPATHI

