AutoCAD DWG drawing of the factory building section details.Download the AutoCAD DWG file.
Description
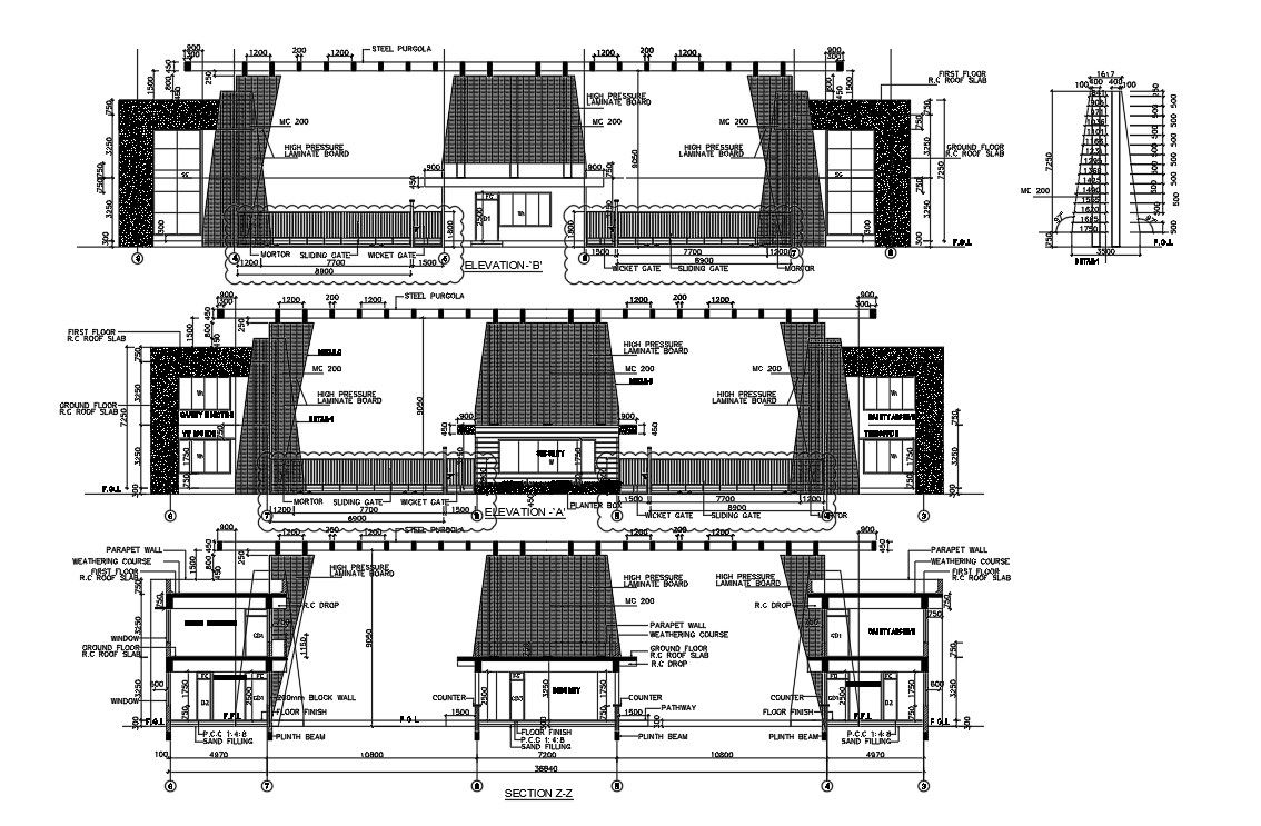
AutoCAD DWG drawing of the factory building section details. Sectional details are clearly given in this drawing file. Also, the Entrance block, section and elevation design are given in this DWG file. Download the AutoCAD DWG file. Thank you so much for downloading the DWG file from our website.
File Type:
DWG
File Size:
366 KB
Category::
Structure
Sub Category::
Section Plan CAD Blocks & DWG Drawing Models
type:
Gold

Uploaded by:
AS
SETHUPATHI

