Physiotherapy College Building Floor Plan and Section AutoCAD DWG
Description
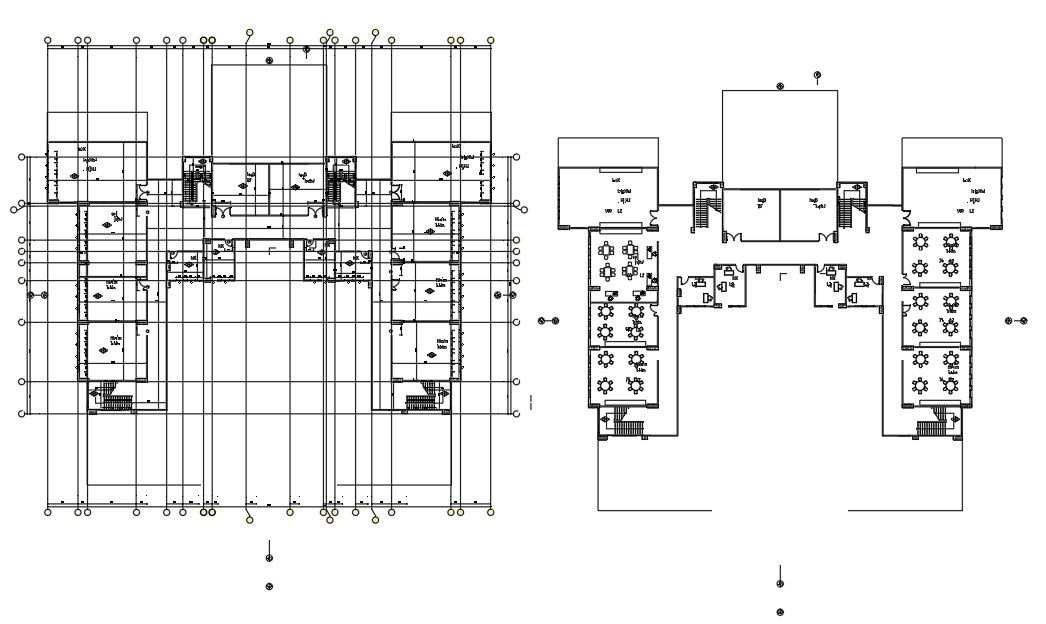
AutoCAD Drawing file of the physiotherapy college building floor plan and section details. Sectional details are clearly given in this drawing file. The college building floor plan diagram is given in this DWG file. classrooms, toilet, staff room, principal room, furniture, staircase are given. Download the AutoCAD 2D DWG file. Thank you so much for downloading DWG file from our website
File Type:
DWG
File Size:
302 KB
Category::
Structure
Sub Category::
Section Plan CAD Blocks & DWG Drawing Models
type:
Gold

Uploaded by:
AS
SETHUPATHI

