The 2D Cad Drawing file of the physiotherapy college building work plan and section details are available.Download the AutoCAD 2D DWG file.
Description
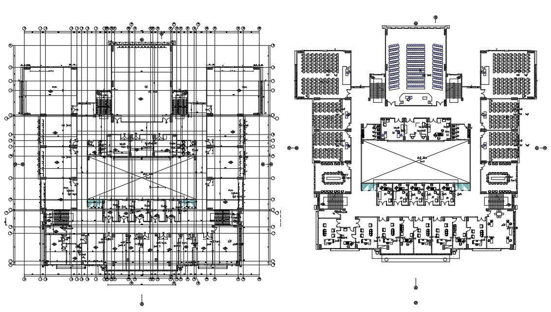
The 2D Cad Drawing file of the physiotherapy college building work plan and section details are available. Sectional details are clearly given in this drawing file. The college building floor plan diagram is given in this DWG file. classrooms, toilet, staff room, principal room are mentioned. Download the AutoCAD 2D DWG file. Thank you so much for downloading DWG file from our website
File Type:
DWG
File Size:
863 KB
Category::
Structure
Sub Category::
Section Plan CAD Blocks & DWG Drawing Models
type:
Free

Uploaded by:
AS
SETHUPATHI

