AutoCAD DWG File Nursing College Building Floor and Section
Description
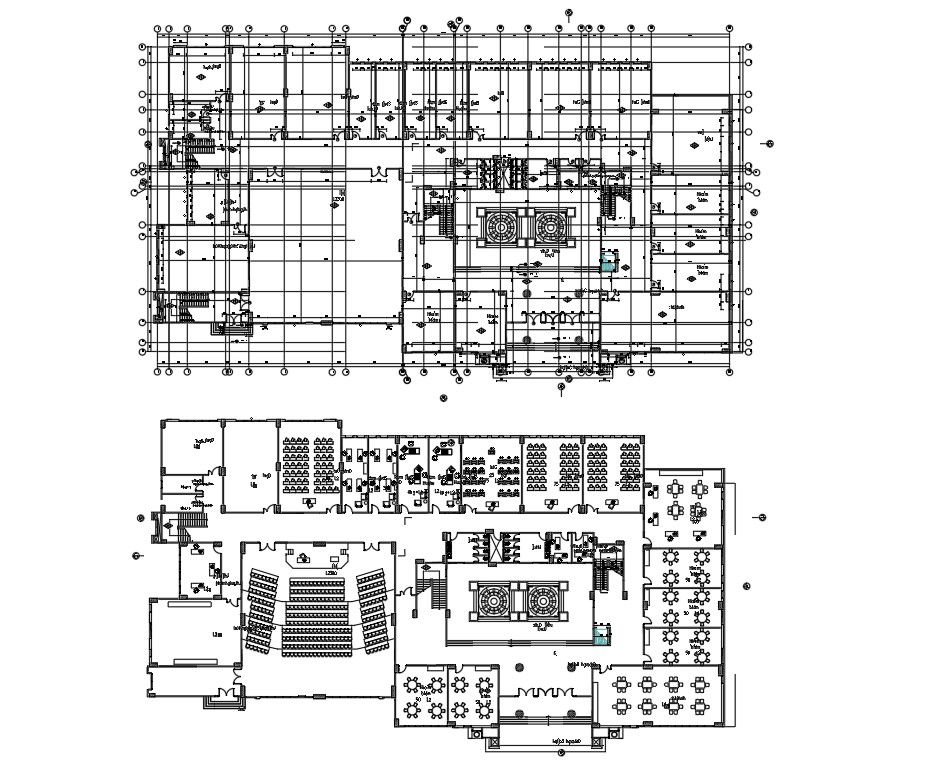
The DWG AutoCAD drawing of the Nursing college building floor plan and section details are available. Sectional details are clearly given in this drawing file. The college building floor plan diagram is given in this DWG file. Classroom furniture, classrooms, toilet, staff room, principal rooms are mentioned. Download the AutoCAD 2D DWG file. Thank you so much for downloading the DWG file from our website.
File Type:
DWG
File Size:
706 KB
Category::
Structure
Sub Category::
Section Plan CAD Blocks & DWG Drawing Models
type:
Gold

Uploaded by:
AS
SETHUPATHI
