CAD DWG drawing of the Dentist college building floor plan and section details are available. Download the AutoCAD 2D DWG file.
Description
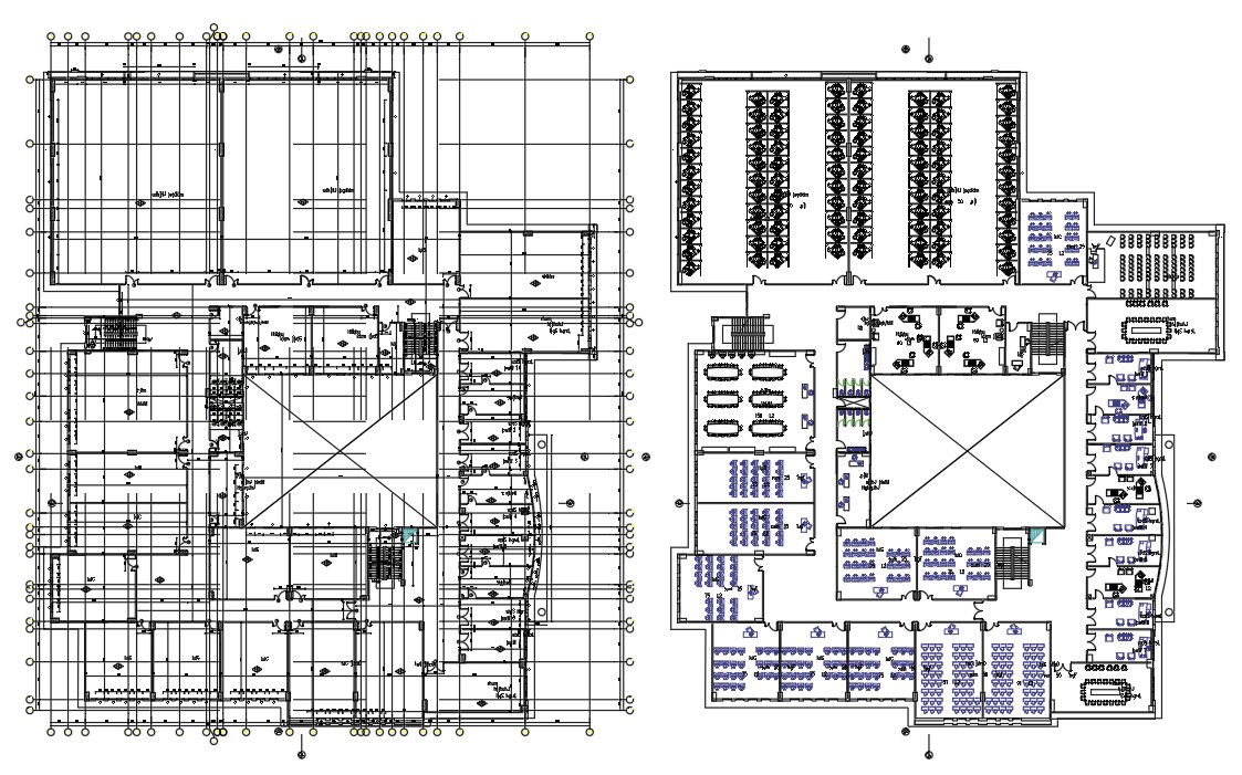
CAD DWG drawing of the Dentist college building floor plan and section details are available. Sectional details are clearly given in this drawing file. The college building floor plan diagram with furniture is given in this DWG file. Classroom furniture, classrooms, toilet, staff room, principal rooms are available. Download the AutoCAD 2D DWG file. Thank you so much for downloading the DWG file from our website.
File Type:
DWG
File Size:
819 KB
Category::
Structure
Sub Category::
Section Plan CAD Blocks & DWG Drawing Models
type:
Gold

Uploaded by:
AS
SETHUPATHI
