Electrical Installation project plan drawing details are given in this AutoCAD DWG file.Download the AutoCAD 2D DWG file.
Description
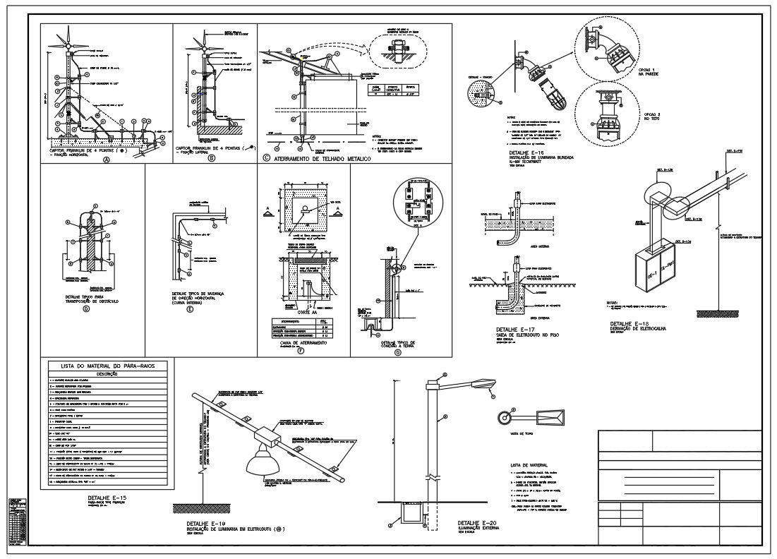
Electrical Installation project plan drawing details are given in this AutoCAD DWG file. Electrical Sectional details are clearly given in this drawing file. Installation of lighting in electro duct , External lighting, Electrical derivation, typical detail of change horizontal direction are mentioned in this drawing. Download the AutoCAD 2D DWG file. Thank you so much for downloading DWG file from cadbull website

Uploaded by:
AS
SETHUPATHI

