AutoCAD DWG Architectural 2D Drawing file of the hotel floor plan details are given. Download the AutoCAD 2D DWG file.
Description
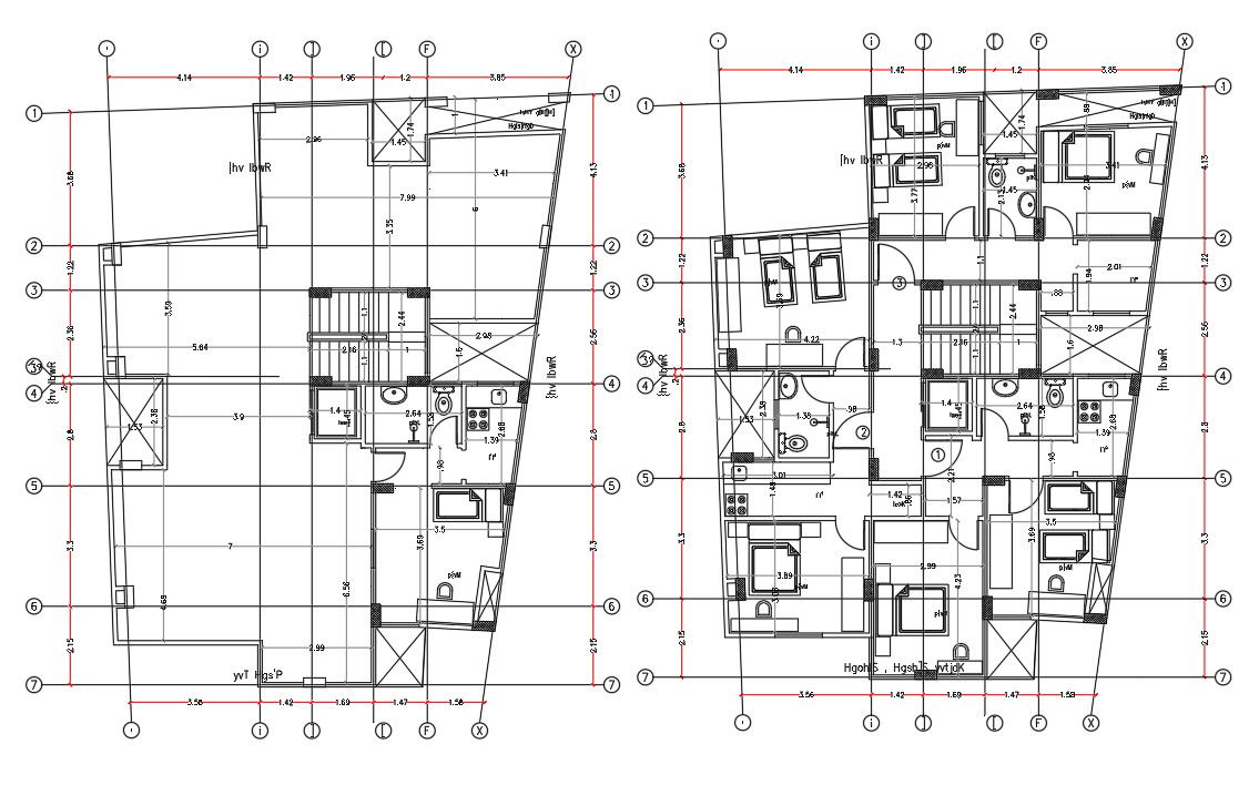
AutoCAD DWG Architectural 2D Drawing file of the hotel floor plan details are given. Sectional details are clearly given in this drawing file. The hotel building floor plan shows a room, toilet, car parking, and column marking is available in this DWG file. The staircase is available inner of the building. Download the AutoCAD 2D DWG file. Thank you so much for downloading DWG file from our website
File Type:
Autocad
File Size:
152 KB
Category::
Architecture
Sub Category::
Hotels and Restaurants
type:
Gold
Uploaded by:

