2D Autocad DWG drawing file has the foundation details of cable trench. Download the DWG file.
Description
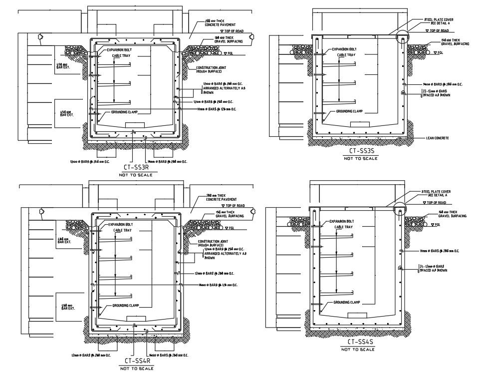
2D Autocad DWG drawing file has the foundation details of cable trench. Cable trenching is a method of laying cables into the ground by digging trenches. The cables are submerged underground via the trench and are then coverd by a layer of earth. In this drawing the foundation of section is clearly explained. Provided 150mm thick gravel surfacing. 200mm thick of concrete pavement is provided. Ground clamp is used to connect the ground cable to the work piece and it is connected directly to the table. Thank you for downlaoding Autocad 2D drawing file from our cadbull website.
File Type:
DWG
File Size:
143 KB
Category::
Structure
Sub Category::
Section Plan CAD Blocks & DWG Drawing Models
type:
Gold
Uploaded by:

